Soutenez la Mission : adhérez ou réadhérez pour la saison 2024-2025
Faire un don pour soutenir la Mission
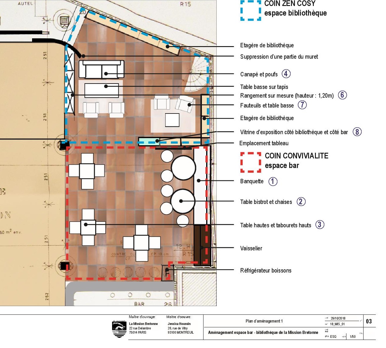
Aménagement de l’espace Conso Bar
Ceux qui fréquentent régulièrement la Mission le savent : cet espace situé entre le bar et la bibliothèque était un doux bazar, particulièrement encombré et faits de mobiliers historiques (certains proviennent de La Quintinie).
Année après année, la Mission se transforme et on s’occupe maintenant de cet espace pour le rendre plus agréable et encore plus accueillant.
Attention ! Le projet n’inclut pas (pour l’instant du moins) le bar proprement-dit qui fera l’objet d’un autre projet : refaire le comptoir est un projet lourd, coûteux, ne pouvant être réalisé que pendant une période de fermeture de la Mission.
Un groupe de travail s’est constitué, formée de personnes motivées, attachées à notre maison et à compétences multiples (il y a même une architecte et c’est grâce à elle si on a un si beau projet)
Le groupe a travaillé, s’est réuni à plusieurs reprises et a produit un schéma d’ensemble d’aménagement qui a été validé. (cf ci-contre)
Grâce aux différentessessions de BricoDécoet aux BricoDéco clandestins :-), les travaux sont maintenant presque terminés :
le muret de briques a été raccourci afin de donner plus d’espace à cette zone. La décision n’était pas facile à prendre mais elle est très bénéfique.
le plafond a été repeint et tous les néons ont été remplacés par des LED intégrées dans le plafond et ça en jette !
les bibliothèques ont été déplacées; le fond visible a été recouvert d’un bardage bois réalisé à partir des assises bois des bancs.
l’enlèvement des vieux mobiliers est presque achevé. Il ne reste maintenant que le canapé bleu à enlever : si cela vous intéresse, contactez nous !
le nouveau mobilier est arrivé en quasi totalité. Il ne reste qu’à le mettre en place et à assembler la banquette bois qui sera le long du mur de pierres.
en complément, 20 tables remplacent les vieilles planches et tréteaux. Elles sont très utiles pour les ateliers de langue bretonne, les repas, etc …
La session BricoDéco de fin février (dimanche 24) a permis de bien avancer. Celle du 10 mars sera la dernière !
Nous utilisons des cookies pour vous garantir la meilleure expérience sur notre site web. Si vous continuez à utiliser ce site, nous supposerons que vous en êtes satisfait. La durée de conservation de votre réponse sera d'un mois.