Et même très bien. L’année commence sur les chapeaux de roues 🙂
Ce début d’année (et surtout la fermeture de la Mission) a permis de faire bien avancer les travaux :
La réfection des lavabos des toilettes du rez-de-chaussée est faite
Les lavabos des deux toilettes, les paillasses carrelées et les meubles en dessous ont été remplacés par des lavabos flambants neufs. Les murs sous les lavabos ont été lessivés et peints par les bénévoles au cours du BricoDéco de ce début d’année.
Prochaine étape en janvier : des sèche-mains électriques. Et pour cela, quelques travaux d’électricité très bientôt (cf plus bas).
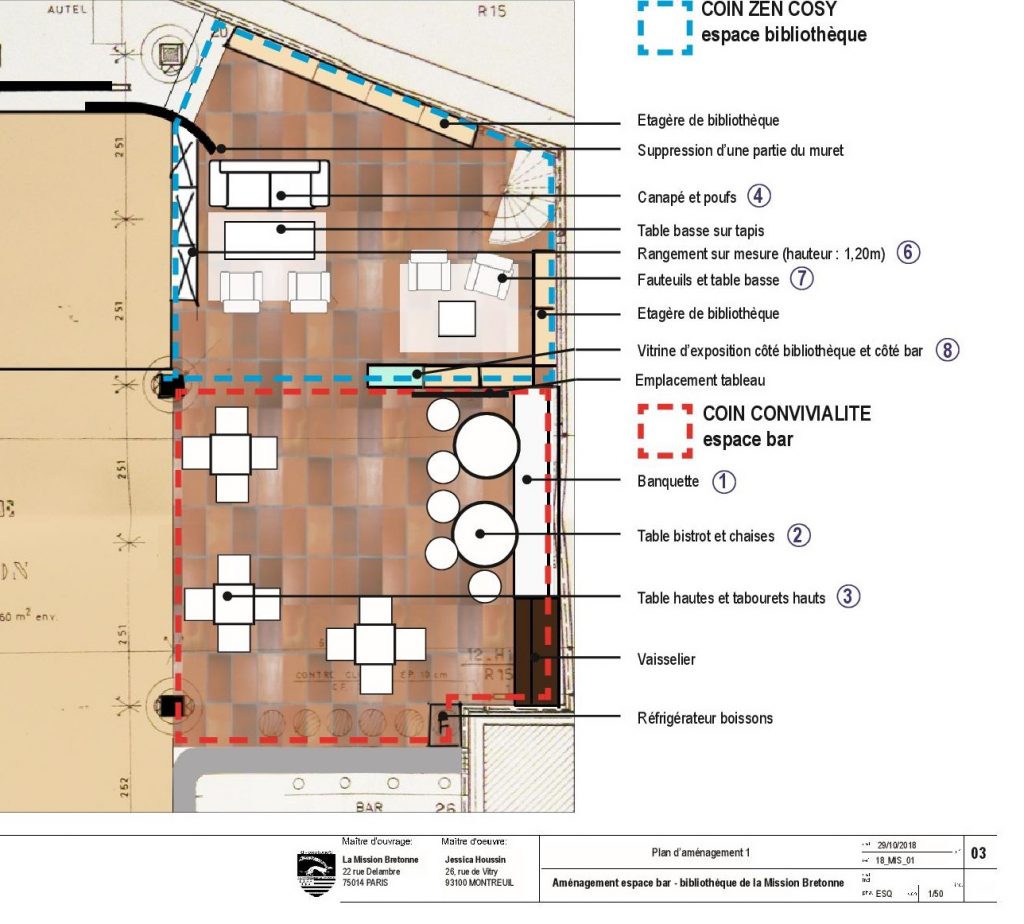
L’aménagement de la zone bibliothèque-consommation-bar avance
La réunion du groupe de travail de fin décembre a permis de finaliser le plan d’aménagement global de la zone et d’avancer sur le choix des mobiliers. (voir la synthèse des travaux).
On vous en dira davantage prochainement, mais ça va être classe !
La session de BricoDéco des 4, 5 et 6 janvier a permis de supprimer une partie du muret de brique qui bouchait un peu l’espace. L’extrémité du muret et le sol ont été repris, l’éclairage de cette surface finalisé. Les rayonnages de la bibliothèque ont été déplacés.
Par ailleurs, le désencombrement se poursuit. Ca en jette !
Les prochaines étapes
Fin janvier, rénovation de deux tableaux électriques vétustes, avec mise en place d’alimentations pour des sèche-mains dans les toilettes du rez-de-chaussée.
Samedi 19 janvier après-midi et dimanche 20, session de BricoDéco pour poursuivre l’aménagement de la zone Conso Bar.




